Koppelvilla met 3 slaapkamers en prachtig uitzicht te Gooik

Gooik
€477.694
slaapkamers
3
slaapkamers
172 m²
oppervlakte
343 m²
Kattestraat, 1755 Gooik
Het Pajotse landschap wordt gekenmerkt door een aaneenschakeling van glooiende heuvels en pittoreske valleien.
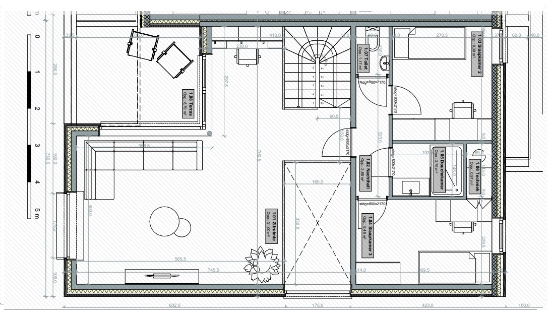
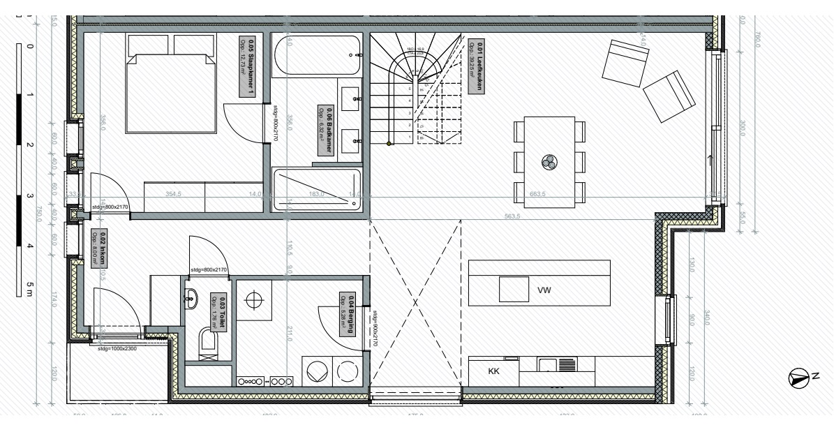
Aan één van de mooiste vergezichten van Gooik, langs de Kattestraat te Leerbeek, bouwen we vier halfopen eensgezinswoningen, die werden ontworpen om optimaal te genieten van het landschap waarin ze zijn ingeplant. Zo kijken de nieuwbouwwoningen uit over een groene vallei, en genieten ze van een weids uitzicht over de heuvelruggen van het Pajottenland. Elke moderne koppelvilla beschikt over drie slaapkamers, twee badkamers, een ruim opgezette leefkeuken en zitruimte met een panoramaterras. Een grote berging en twee toiletten ronden het plaatje af.
Comfort met een grote C
Het uitgelezen materiaalgebruik, en de verfijnde architectuur zijn indicatief voor het niveau van de technieken waarmee de nieuwbouwwoningen van dit vastgoedproject zijn uitgerust. Zo beschikken ze over een balansventilatiesysteem type D, vloerverwarming en een batterij. Alle woningen hebben dan ook een aangenaam binnenklimaat, en voldoen zo aan alle geldende normen.
We begeleiden u in jouw keuzes, zodat je zelf je stempel kan drukken op de afwerking van je woning. Benieuwd naar de mogelijkheden? Of plan je graag een afspraak in om een kijkwonnig te bezoeken ?
Contacteer Pieter Cardoen via het contactformulier op deze pagina , of op 0475 36 12 52 , pieter@cornelis-partners.be.
De prijzen zijn excl. BTW en kosten (verkooprechten & notariskosten).
Lees meer

Foto's van het pand

Kenmerken

Algemeen

Prijs:
€ 477.694
Adres:
Kattestraat, 1755 Gooik
Bewoonbare oppervlakte:
172 m²
Grond oppervlakte:
343 m²
Verdieping:
Gelijkvloers
Facades:
3
Staat:
Nieuwbouw project

Indeling

Slaapkamers:
3
Badkamers:
1
Toiletten:
2
Parkings (buiten):
1
Slaapkamer 1:
12.73 m²
Slaapkamer 2:
8.39 m²
Slaapkamer 3:
8.48 m²

Comfort

Elektriciteit:
Ja
Kabeltelevisie:
Ja
Telefoonbekabeling:
Ja
Water:
Ja
Waarde E-peil (Nieuwbouw):
24

Wettelijke info

Stedenbouwkundige bestemming:
Woongebied met landelijk karakter
Stedenbouwkundige vergunning:
Geen vergunning uitgereikt
Dagvaarding en herstelvordering:
Niet meegedeeld
Voorkooprecht:
Geen voorkooprecht ruimtelijke ordening aanwezig
Verkavelingsvergunning:
Geen verkavelingsvergunning
WORG:
Nee
G-score
Klasse A: geen overstroming gemodelleerd
Beschermd erfgoed :
Nee
Geïnventariseerd erfgoed :
Nee

Heeft u interesse in dit pand? Contacteer Pieter Cardoen!