Nieuwbouwappartement met 3 slpks + terras

Geraardsbergen
€541.000
slaapkamers
3
slaapkamers
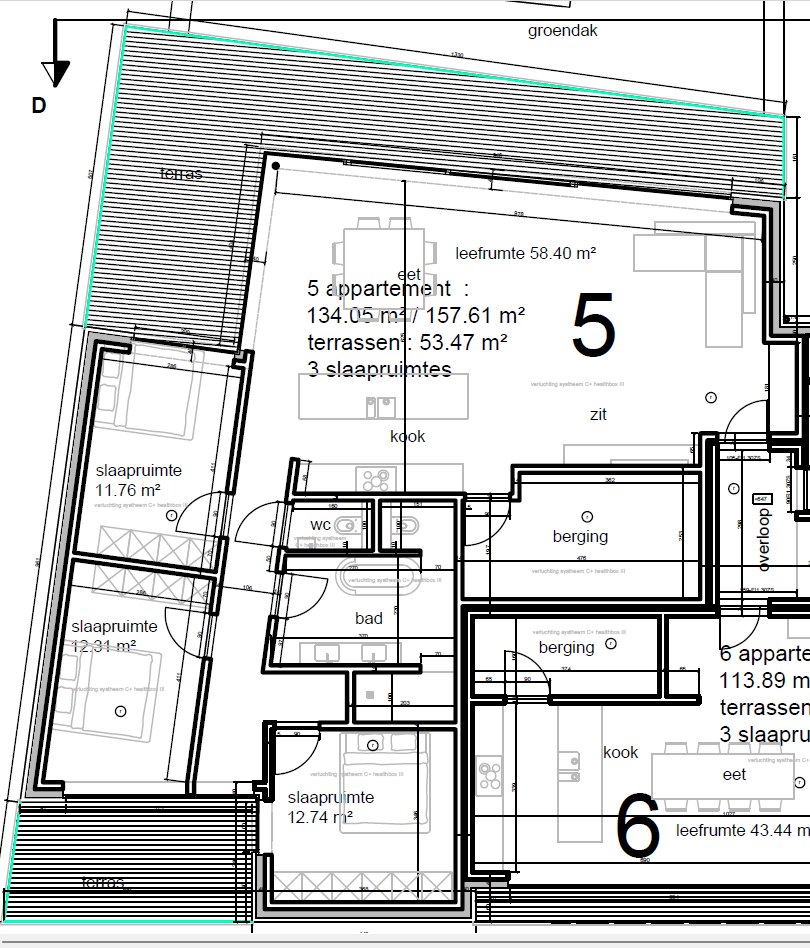
158 m²
oppervlakte
157 m²
Vianeplein 24, 9500 Geraardsbergen
Welkom bij ons nieuwbouwproject “BEAU” te Geraardsbergen( deelgemeente Viane) , waar lichtinval, privacy en een prachtig uitzicht hand in hand gaan. Dit project biedt een unieke kans om te wonen in optimaal comfort, met extra aandacht voor praktische indeling en energiezuinigheid.

Het aanbod van dit kleinschalig project (waarvan reeds 18% verkocht) bestaat o.a.appartementen met :
• 1 Slaapkamer +bureel/praktijkruimte
• 2 Slaapkamers
• Dakappartementen met 2 of 3 slaapkamers

Gelegen in de rustige deelgemeente Viane, biedt dit project uitstekende verbindingen naar o.a Brussel/ Rijsel:
Met de wagen, met de oprit naar de E429 op slechts 8 minuten rijden.
Met het openbaar vervoer : op 1,8 km van treinstation met rechtstreekse verbinding naar o.a. Bussel.
Vele ontspanning- en recreatiemogelijkheden waaronder
- Natuurreservaat “ Rietbeemd” op 3 km,
- Muur van Geraardbergen op 4,2 km
- Bosberg te Galmaarden met aansluitend recreatiedomein de “Gavers “

U geniet van een hoog wooncomfort dankzij:
• Akoestische en Thermische Isolatie, Automatische Zonnewering, Herbruik van Regenwater, Individuele Warmtepomp met Zonnepanelen, Vloerverwarming, Voldoende Opbergruimte, Ruime Terrassen….

De indeling en afwerking kunnen nog volgens uw wensen worden aangepast, zodat u uw droom(t)huis kunt creëren.
Mis deze kans niet om te wonen in een prachtig nieuwbouwproject in Viane, Geraardsbergen. Voor bijkomende info: Bel 0475/ 36 12 52 ( Pieter Cardoen) of via pieter@cornelis-partners.be

Vermelde prijs is exclusief registratierechten en BTW
Lees meer

Foto's van het pand

Kenmerken

Algemeen

Prijs:
€ 541.000
Beschikbaarheid:
bij oplevering
Adres:
Vianeplein 24, 9500 Geraardsbergen
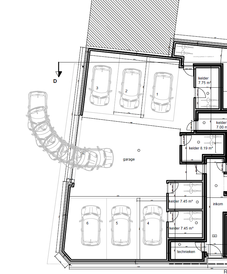
Bewoonbare oppervlakte:
157.61 m²
Verdieping:
2
Verdiepingen:
2
Staat:
Nieuwbouw project

Indeling

Slaapkamers:
3
Terras oppervlakte:
53.47 m²

Wettelijke info

Stedenbouwkundige bestemming:
In aanvraag
Stedenbouwkundige vergunning:
Geen vergunning uitgereikt
Dagvaarding en herstelvordering:
Niet meegedeeld
Voorkooprecht:
Geen voorkooprecht ruimtelijke ordening aanwezig
Verkavelingsvergunning:
Geen verkavelingsvergunning
Beschermd erfgoed :
Nee
Geïnventariseerd erfgoed :
Nee

Heeft u interesse in dit pand? Contacteer Pieter Cardoen!